Продається будинок Лісна, Давидів, Пустомитівський, Львівська (№ 22-391-556)
Ціна: 92 000 $

Адреса: Лісна, Давидів, Пустомитівський, Львівська
Характеристики
| Ціна: | 92 000 $ |
|---|---|
| № об'єкта: | 22-391-556 |
| Тип: | будинок |
| Поверхів: | 2 |
| Спалень: | 4 |
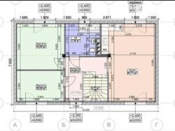
| Площа будинку: | 160 м2 |
| Ділянка: | 10 сот |
Опис
Продаж 2 поверхового будинку в селі Давидів біля лісу, вул. Лісна. Ділянка 10соток, правильної прямокутної форми Будинок з керамічної цегли, утеплений пінополістиролом. Дах з полімерно-піщаної черепиці. Навіс під авто. Скважина, електрика 15кВт (можна ще додати), септик, електричний котел. Бетонне перекриття. Додатково будуть проведені комунікації під тепловий насос. Загальна площа будинку 160м2. Ідеальне розташування для тих, хто хоче жити поблизу міста. Огляди по домовленості. Будинок в процесі завершення будівництва (внутрішні роботи, прибудинкова територія)














