Продається будинок Львівська, Пустомитівський, Солонка (№ 22-424-755)
Ціна: 240 000 $

Характеристики
Ціна: | 240 000 $ |
---|---|
№ об'єкта: | 22-424-755 |
Тип: | будинок |
Поверхів: | 2 |
Спалень: | 3 |
Площа будинку: | 220 м2 |
Ділянка: | 8 сот |
Адреса: Львівська, Пустомитівський, Солонка
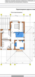
Будинок:
Продається будинок в Солонці площею 220м.
⦁ Ділянка 8сот. 20 на 40м. Вулиця Олени Пчілки.
⦁ Два повноцінних поверхи + горище.
⦁ Кухня-столова-вітальня в обєднаному просторі площею 60м.
⦁ Гараж на 2 авто площею 38м.
⦁ Простора опалювальна площею 9м.
⦁ Тераса + Балкон.
⦁ Два санвузли.
⦁ 3 спальні 24/15/19 м.
⦁ Задній двір на південь.
⦁ Своя свердловина та автономна каналізація.
⦁ Контракт на електрику по вашому бажанні 9 чи 17 КВт.
⦁ Газ 50 метрів (не планувався по проекту).
⦁ Електрика розведена, вода частково.
⦁ Тиха вулиця, хороші сусіди.
⦁ Хороший доїзд, асфальт/бруківка.
⦁ Швидкий виїзд на Кільцеву Львова.
⦁ 4,5 км (8хвилин) від King Gross.
⦁ 14км (15хв) від Victoria Gardens.
⦁ дизайн + проект.
Будівництво:
Будувався для себе з якісних матеріалів, є фото всіх етапів будівництва.
Фундамент та міжповерхові перекриття - монолітна плита.
Стіни - керамоблок parotherm klima 38см
Фасад - Вата rockwool 15см.
Вікна - Veka 7 камерний профіль + алюмінієва розсовка на терасу.
Дах - натуральна керамочерепиця rooben
Димохід під камін - schidel кераміка.
Комени - клінкерна цегла rooben.
Двері - rodos з терморозривом.
Гаражні ворота 5,5м Alutech з електроприводом.
Відмостка та вїзд вимощені бруківкою.