Продається будинок Янівська, Бірки, Яворівський, Львівська (№ 22-437-381)
Ціна: 159 000 $

Адреса: Янівська, Бірки, Яворівський, Львівська
Характеристики
| Ціна: | 159 000 $ |
|---|---|
| № об'єкта: | 22-437-381 |
| Тип: | будинок |
| Поверхів: | 2 |
| Спалень: | 4 |
| Площа будинку: | 156 м2 |
| Ділянка: | 6 сот |
Опис
Продаж будинку в передмісті Львова, с. Бірки, 156 кв м, 6 сот.
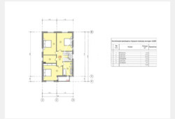
Продається двоповерховий будинок у с. Бірки (Брюховичі). Будинок розташований в мальовничій локації, на подвірї ростуть сосни, неподалік ліс. Район вулиці Янівської. Поряд живуть сусіди, район активно забудовується. БЕЗ КОМІСІЇ! Будинок активно будується, буде готовим весною 2026 р. Площа подвір?я - 6 соток. Площа будинку – 155.5 кв м. Комунікації: Газ Світло Свердловина Каналізація Технічні характеристики: Будинок збудований з керамоблоку Перекриття - моноліт Дах -метал. 4-скатний Фасад буде утеплено пінопластом- 15 см Вікна та балконніu002Fтерасні двері - енергозберігаючі, 6-ти камерні, з подвійним склопакетом. З вітальні будинку є вихід у задній дворик з літньою терасою (є накриття) Балкон Огорожа – металева, з відкатною брамою та хвірткою. Планування будинку: 1-й поверх: - коридор - 13.02 м кв - кухня - 10.47 м кв - вітальня- 30.73 м кв - кімната - 15.07 м кв - санвузол – 4. 14 м кв - кладова – 3,88 м кв 2-й поверх: - сходова клітка-хол - 6.34 м кв - спальня - 17.09 м кв - спальня - 18.00 м кв - спальня - 17.8 м кв - гардероб – 6.34 м кв - санвузол - 7.97 м кв Горище

















