Продам Комерційну Нерухомість на Вул. Р. Скалецького (№ 2-495-104)
Ціна: 325 000 $

Адреса: Р. Скалецького, 29, Вінниця, Вінницька, Ленінський
Характеристики
| Ціна: | 325 000 $ |
|---|---|
| № об'єкта: | 2-495-104 |
| Поверх: | 2 / 12 |
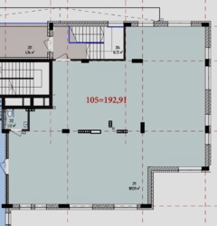
| Площа: | 192,91 м2 |
| Додатково: | парковка |
Опис
Прекрасна можливість для вашого бізнесу!
Пропонується на продаж комерційне приміщення, розташоване за адресою вул. Р. Скалецького 29.
Це ідеальне місце для розвитку вашого бізнесу, зручно розташоване в активній частині міста.
Надійний забудовник: Муніципальне житло - гарант якості та надійності.
Терміни здачі: Будинок буде здано в експлуатацію наприкінці 2024 року.
-Автономне електроопалення
-Чорнова штукатурка
-Великий підземний паркінг
-Облагороджена територія
-Генератор в будинку
-Зручна транспортна інфраструктура
Це інвестиція, яка буде приносити стабільний дохід і допоможе розвинути ваш бізнес до нових висот!
Телефонуйте зараз!






