Продається квартира Львівська, Львів, Шевченківський, Шевченка, 25 (№ 212-621-911)

Ціна: 124 000 $
Характеристики
| Ціна: | 124 000 $ |
|---|---|
| № об'єкта: | 212-621-911 |
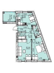
| Кімнат: | 2 розд |
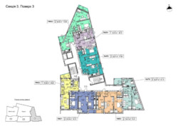
| Поверх: | 3 / 9 |
| Площа: | 62 / 50 / 12 м2 |
Адреса: Львівська, Львів, Шевченківський, Шевченка, 25
Продаж 2 кімнатних апартаментів в ЖК Велика Британія 6 черга, 3 секція, здача 1 квартал 2023 року. Загальна площа 62 м.кв., кухня 12 метрів, квартира двостороння. Третій поверх, вікна кімнат виходять на Південь (вул. О. Степанівни), кухня на Північ в двір. Продаж по переуступці. КВАРТИРА З РЕМОНТОМ.



