Головна >> Продаж квартир >> Об'єкт №212676888

Продається квартира Львівська, Львів, Личаківський, Симиренків  (№ 212-676-888)

Продається квартира Львівська, Львів, Личаківський, Симиренків фото 1

Ціна: 53 000 $

Характеристики

Ціна: 53 000 $
№ об'єкта: 212-676-888
Кімнат: 2
Поверх: 2 / 2
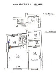
Площа: 65 / - / - м2

Адреса: Львівська, Львів, Личаківський, Симиренків

Хочете купити оселю з мінімум сусідів і власною прибудинковою територією в найкращому р-ні Львова?
Ви маєте таку унікальну можливість!

Продам 2к квартиру в будинку особнякового типу.
В тихому зеленому чистому районі поруч всієї інфраструктури.
Бічна Пасічної.
Неподалік Погулянки.
Загальна площа 65 м2 з можливістю перепланування та розширення площі!
Будинок цегляний, фасад вже утеплений, 2 поверх, окремий вхід.
Дах новий - нове покриття, прибудинкова спільна з сусідом територія, можна встановити альтанку, є можливість заїжджати на авто.
Квартира має хороші перспективи на перепланування, точно не проти ваших авторських ідей для ремонту, опалення індивідуальне, стоїть п'єц. Над квартирою власний стрих, можете його облаштувати, маєте можливість збільшення житлової площі... Є сарай, можна переоблаштувати під свою майстерню.
Особняк всього з одним сусідом і прибудинковою територією... Альтанка... Басейн...
В тихому зеленому спокійному районі Львова... Це просто МРІЯ!
Телефонуйте, відповім на всі питання, оглянемо, домовимось і ви щасливий власник перспективної квартири з ділянкою! З власним простором, відпочинком та затишком.
Район тихий, зелений, з хорошою інфраструктурою: магазин, школа, садочок, дит. майданчик та все інше просто під рукою!

Мінімум сусідів!
Власна територія! Для вашого авто є власне місце! Ваші діти завжди під наглядом та в безпеці!
Цу дуже зручно та перспективно!
Квартира актуальна і чекає саме на ВАС!
Ваш спокій та простір в ваших руках) Поспішіть!
Документи до продажу готові, є торг.

Об'єкт на карті