Продається двокімнатна видова квартира у ЖК Велика Британія (№ 212-698-874)

Ціна: 97 000 $
Характеристики
Ціна: | 97 000 $ |
---|---|
№ об'єкта: | 212-698-874 |
Кімнат: | 2 розд |
Поверх: | 7 / 8 ліфт |
Площа: | 65 / 31 / 12 м2 |
Санвузол: | 1 роздільний |
Балкон: | балкон |
Додатково: | новобудова |
Адреса: Львівська, Львів, Залізничний, Олени Степанівни, 8а
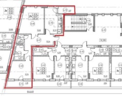
Продається 2-кімнатна видова квартира у ЖК 'Велика Британія' по вул. Олени Степанівни.
Загальна площа 65 кв.м, , кухня 13 кв.м. Квартира знаходиться на 7-поверсі 8-поверхового будинку.
Опалення - своя котельня на будинок. Продаж по переуступці.
Невеличкий балкон з кухні, та один великий балкон з кімнати з видом на церкву Святого Юри.
Проведені усі комунікацію, а сам будинок - зданий в експлуатацію. Присутній підземний та наземний паркінг.
Залита стяжка, всі стіни з цегли.
Поруч знаходиться гуманітарна гімназія, центр освіти та краси, Галицький районний суд Львова, обласний центр зайнятості, дитячий садочок №1, магазини, кафе, зупинка, відділення пошти.
Також по сусідству продається 1-кімнатна квартира. Є можливість об'єднання.
Телефонуйте!
Домовимось про перегляд у будь-який зручний для Вас час.
АН 'Realty Group'