Продаж трикімнатної квартири 82м2 Новий Львів, Мальви (№ 212-701-365)

Ціна: 125 000 $
Характеристики
Ціна: | 125 000 $ |
---|---|
№ об'єкта: | 212-701-365 |
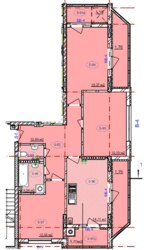
Кімнат: | 3 розд |
Поверх: | 3 / 10 |
Площа: | 83 / - / 17 м2 |
Санвузол: | 2 роздільний |
Балкон: | лоджія |
Адреса: Львівська, Львів, Сихівський, Угорська
Продаж трикімнатної квартири з якісним ремонтом ЖК Мальви на Угорській.
Опалення індивідуальне газове з підігрівом підлоги.
Перспективний, розвинений район, є все для комфортного проживання.
Продаж по переуступці.
Торг присутній.
Дзвоніть прямо зараз!
Домовимось про перегляд в зручний для вас час.
АН 'Realty Group'