Продається 1-кімнатна квартира в ЖК 'Синергія' на вул. Соборній, 289 (луцьке кільце) Без ремонту, після забудовника. (№ 212-869-485)

Ціна: 35 000 $
Характеристики
| Ціна: | 35 000 $ |
|---|---|
| № об'єкта: | 212-869-485 |
| Кімнат: | 1 |
| Поверх: | 2 / 9 |
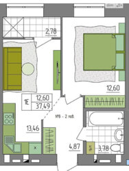
| Площа: | 37 / - / 13 м2 |
Адреса: Рівненська, Рівне, Соборна
Продається затишна 1-кімнатна квартира в ЖК 'Синергія' на вул. Соборній, 289 (луцьке кільце)
Характеристики:
Адреса: вул. Соборна, 289, ЖК 'Синергія' (луцьке кільце)
Поверх/площа: 2-й поверх, 37.5 кв.м.
Стан: від забудовника, можливість власного дизайнерського оформлення
Вартість: за ціною включено стяжка, штукатурка, розводка електрики, індивідуальне опалення, протиударні вхідні двері, лічильники, радіатори з терморегулятором
Особливості:
Цегляний будинок, з утепленими стінами і цегляними перегородками
Інтернет та домофон вже підведені до квартири
Лоджія на кухні, що розширює простір та надає зручності
Зручне розташування з відмінною транспортною розв'язкою для легкої доступності до будь-якого куточка міста
Розвинена інфраструктура: близькість магазинів, кафе, шкіл, садочків, церкви, поліклініки, авторинку та ринку
Здача будинку: планується у 4 кварталі 2023 року
Це чудова можливість стати власником сучасного житла в новому житловому комплексі. Не втрачайте шансу!





