Продається квартира Львівська, Львів, Сокільники, Спортивна (№ 212-876-856)

Ціна: 32 000 $
Характеристики
| Ціна: | 32 000 $ |
|---|---|
| № об'єкта: | 212-876-856 |
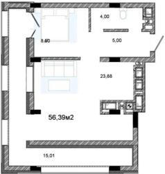
| Кімнат: | 2 |
| Поверх: | 5 / 5 |
| Площа: | 56 / 46 / 10 м2 |
Адреса: Львівська, Львів, Сокільники, Спортивна
Продаж апартаментів 56.39м2. Велика тераса, панорамні вікна. ПЕРША ЧЕРГА ( секції Л, Ж, Е ) будинок Ж вже збудований. Бічна Стрийської район автовокзалу Є ЛІФТ. Максимальне наповнення: чорнова штукатурка, стяжка, котел, радіатори, панорамні вікна, лічильники. Переуступка, здача 2024р. Малоповерховий житловий комфорт-класу. Дев'ять будинків 4-5 пов у мальовничому куточку на відстані 20хв автомобілем від історичного центру міста. У кожному будинку відкриті тераси зі скляними огорожами.





















