Продається квартира Львівська, Львів, Франківський, Володимира Великого, 10 (№ 212-898-675)

Ціна: 75 000 $
Характеристики
Ціна: | 75 000 $ |
---|---|
№ об'єкта: | 212-898-675 |
Кімнат: | 1 |
Поверх: | 9 / 16 ліфт |
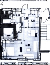
Площа: | 47 / 32 / 32 м2 |
Додатково: | новобудова |
Адреса: Львівська, Львів, Франківський, Володимира Великого, 10
Продаж 1к квартири в ЖК Америка
Вул В. Великого 10
Однокімнатна квартира хорошого планування, загальна площа -47. 77кв. м 9/16 повкрх
Продаж по переуступці Здача 1кв. 2024р
Ціна 75000$
Дзвоніть, покази за попередньою домовленністю.
Хороша іевкстиці яз хорошим розташуванням.
І для власного проживання, і для здачі в оренду.