Продається квартира Львівська, Львів, Сихівський, Бережанська вул. (№ 212-906-295)

Ціна: 88 900 $
Характеристики
| Ціна: | 88 900 $ |
|---|---|
| № об'єкта: | 212-906-295 |
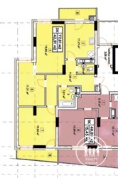
| Кімнат: | 3 розд |
| Поверх: | 14 / 14 ліфт |
| Площа: | 78 / 43 / 12 м2 |
| Санвузол: | 2 |
| Балкон: | балкон+лоджія |
| Додатково: | новобудова |
Адреса: Львівська, Львів, Сихівський, Бережанська вул.
Продам 3к квартиру на Сихові.
Верхній Шувар.
Вул. Бережанська
Квартира хорошого планування, індивідуальне газове опалення, там лічильник вже встановлені ,простора кухня, два санвузли, 3 роздільних кімнати, зашклена лоджія та балкон. Загальна площа 78м2. Хороша прибудинкова територія, дитячий майданчик та відкритий паркінг. Будинок збудований та готується до здачі. Закінчуються оздоблювальні роботи в під’їзді, ліфти встановлення та підключені. Огляди вже.
Хороше розташування, в стороні від дороги, хороша прибудинкова територія. Поруч школа, дитячий садочок, магазини, зупинки, та верхній Шувар.
Готовий збудований будинок за хорошою ціною! Це хороший варіант для родини, яка хоче проживати у власній квартирі в новобудові поруч усієї інфраструктури Сихова. Хороша ціна — чудове розташування!
Телефонуйте, одразу покажемо!
Пропозиція без комісії для покупця!
Будинок збудований! Здача на вересень!
Продаж по переуступці-жодних зайвих витрат.
Поспішіть!





































