Продається квартира Львівська, Львів, Шевченківський, Замарстинівська вул. (№ 212-962-089)

Ціна: 86 900 $
Характеристики
Ціна: | 86 900 $ |
---|---|
№ об'єкта: | 212-962-089 |
Кімнат: | 1 |
Поверх: | 3 / 10 ліфт |
Площа: | 63 / - / 21 м2 |
Додатково: | новобудова |
Адреса: Львівська, Львів, Шевченківський, Замарстинівська вул.
Продам квартиру 63м2 в зданій та заселеній новобудові!
Шевченківський р-н.
ТЦ Спартак.
ЖК Greenville!
Будинок зданий та заселений!
Можна робити ремонт!
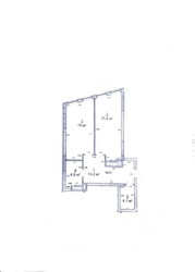
Хороше планування:
-Простора кухня-вітальня площею 21.4 м2
-Велика спальня 19 м2
-Простора гардеробна 4.1 м2
-Великий коридор 14.2 м2
-Індивідуальне газове опалення,
-Панорамні вікна.
-Можливість перепланування в 2к - 63м2!
Житловий комплекс вже давно зданий та заселений.
Має свою розвинену інфраструктуру: Близенько, магазини, дитячий та спорт майданчики, ландшафтні відпочинкові зони, перукарні та ін.
Поруч зупинка, хороше транспортне сполучення, до центру пішки 15хв.
Чудова інфраструктура навколо! Поруч знаходяться магазини, кафе, ресторани, школи, дитячі садочки, ТЦ Спартак, базар та ін.
І головне! Піша доступність до Центру!
Продаж ще можливий по переуступці - швидке оформлення та економія коштів!)
Телефонуйте, відповім на всі питання та оглянемо в зручний для вас час.
Ключі.