Продається квартира Львівська, Львів, Лінкольна вул. (№ 213-025-933)

Ціна: 88 900 $
Характеристики
Ціна: | 88 900 $ |
---|---|
№ об'єкта: | 213-025-933 |
Кімнат: | 1 |
Поверх: | 2 / 12 |
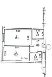
Площа: | 45 / 31 / 14 м2 |
Додатково: | новобудова |
Адреса: Львівська, Львів, Лінкольна вул.
Продам готову 1к квартиру в новобудові!
Неподалік центру!
ЖК Лінкольна.
Житловий комплекс бізнес класу!
Складається з 2х будинків! Закрита територія, підземний паркінг, консьєрж та охорона, при відключенні світла працюють ліфти та світло в підʼїздах!
На території дитячий та спортиний майданчики.
Будинок 19 року і вже повністю заселений .
комфортний 2 поверх
з ремонтом та меблями
теплі підлоги
кондиціонер, ванна, пралка та ін.
Ідеальна локація для проживання!
Розвинений зелений район в пішій доступності др центру та парку 700 річчя, парку Високий замок. Поруч школа, дитячі садочки, магазини, зупинки, торгівельні центри та ін.
Можливий розрахунок в гривні!
Можливий продаж по державним програмам.
Телефонуйте, відповім на всі питання та оглянемо в зручний для вас час.