Продається квартира Львівська, Львів, Залізничний, Рудненська, 8 (№ 213-071-153)

Ціна: 80 000 $
Характеристики
Ціна: | 80 000 $ |
---|---|
№ об'єкта: | 213-071-153 |
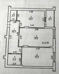
Кімнат: | 2 розд |
Поверх: | 2 / 11 |
Площа: | 73 / 34 / 17 м2 |
Санвузол: | сумісний |
Адреса: Львівська, Львів, Залізничний, Рудненська, 8
Ваша нова 2-кімнатна квартира у ЖК Riel City – пропозиція від Realty Group
Realty Group презентує двокімнатну квартиру, що чекає на свого нового власника у престижному ЖК Riel City.
Будинок введений в експлуатацію, є право власності.
Вигідний другий поверх: Ідеальне розташування.
Світлий інтер'єр: Насолоджуйтесь природним освітленням та приємною атмосферою.
Автономне опалення: Власна котельня на даху – це завжди тепло та контроль над витратами.
Ефективне планування: Максимальний комфорт та функціональність.
Звертайтесь до нас за телефоном або у Telegram, Viber, WhatsApp прямо зараз, щоб домовитися про перегляд!