Продається квартира Львівська, Львів, Залізничний, Вернигори вул. (№ 213-073-208)

Ціна: 124 200 $
Характеристики
| Ціна: | 124 200 $ |
|---|---|
| № об'єкта: | 213-073-208 |
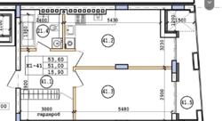
| Кімнат: | 1 розд |
| Поверх: | 4 / 6 |
| Площа: | 54 / 38 / 16 м2 |
| Санвузол: | сумісний |
| Додатково: | новобудова |
Адреса: Львівська, Львів, Залізничний, Вернигори вул.
Продаємо квартиру у розкішній клубній резиденції на 25 сімей.
Це райський куточок у місті Лева, який розташований на тихій непроїздній вулиці Вернигори.
Позиціонується в преміум-класі як клубний будинок з першокласними зручностями: просторі холи з відпочинковим простором понад 50м2 на кожному поверсі, облаштовані зручними кріслами, столиком та зеленим куточком, велика з сучасним дизайном територія, консьєрж -сервіс з круговим відеонаглядом – все це дало змогу створити будинок для респектабельного проживання.
- тільки якісні матеріали(забудовник гарантує якість використовуваних матеріалів).
- надійний забудовник (повний пакет дозвільної докумнтації та вчасна здача будинку, задекларована в договорі)
-чудове розташування(тиха та непроїздна вулиця в 5хв до центральної частини міста)
Квартира на 4-му поверсі з ізольованою спальнею , кухнею-вітальнею та просторим балконом.
- підземний паркінгна 30 паркомісць.
-балкони / лоджіїз поручнями тонованого, гартованого скла.
-експлуатовані тераси.
-стяжка з роздільним підігрівом підлоги (санвузол, коридор).
-панорамні вікна VEKA.
Теплий алюміній, 2-камерний енергозберігаючий склопакет, прихована фурнітура.
-зовнішні стіни-пустотіла керамічна цегла.
-броньовані вхідні двері.
-утеплення-мінеральна вата 150мм.
-безшумний ліфт (спуск та підйом прямо з паркінгу)
-опалення-двохфункційні котли Viessmann+ радіатори.
Будинок збудований, можна оглянути у зручний час.







