Продається квартира Львівська, Львів, Залізничний, Олени Степанівни (№ 213-142-746)

Ціна: 97 000 $
Характеристики
| Ціна: | 97 000 $ |
|---|---|
| № об'єкта: | 213-142-746 |
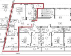
| Кімнат: | 2 |
| Поверх: | 7 / 8 |
| Площа: | 64 / 51 / 13 м2 |
Адреса: Львівська, Львів, Залізничний, Олени Степанівни
Продаж 2-к апарт. ЖК Велика Британія
вул. Олени Степанівни
Продаж по переуступці видових 2- кімнатних апартаментів
Забудовник 'РІЕЛ'.
Площа 65, 43 м2, два балкони, дахова котельня.
Залита стяжка, всі стіни з цегли, проведені комунікації,
Квартира не кутова, тепла. Панорамні вікна виходять в двір та на вулицю з видом на церкву св. Юра.
Дуже гарне місце розташування, тиха вулиця, є підземний паркінг.
Будинок збудований, можна проводити ремонтні роботи.
На поверсі є три комори площами 3, 97 м2, 1, 64 м2 та 1, 73 м2, (у вартість не входять).















