Продається квартира Львівська, Львів, Франківський, Трускавецька, 131 (№ 213-149-308)

Ціна: 82 000 $
Характеристики
Ціна: | 82 000 $ |
---|---|
№ об'єкта: | 213-149-308 |
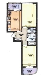
Кімнат: | 2 |
Поверх: | 12 / 15 |
Площа: | 58 / - / - м2 |
Додатково: | новобудова |
Адреса: Львівська, Львів, Франківський, Трускавецька, 131
Проаю 2к вкартиру в новобудові!
ЖК на Трускавецькій
напроти ЖК Галицький Лев
Галжитлобуд
Квартира хорошого планування,
площею 58м2
кухня -вітальня
дві спальні
роздільний санвузол
зашклена лоджія
балкон
індивідуальне газове опалення,
підземний паркінг,
Будинки збудовані, електрика підключена, ліфти встановлені, батареї встановлення, оздоблювальні роботи зовні всередині зроблені .
Черга підключення газу та котлів.
Поруч чудова інфраструктура: школи, дитячі садочки, будинки, магазини, дитячі майданчики та інше .
Перші будинки вже здані та засеселені, тепер черга наших!
Продаж по переуступці!
Здача на 4 кварти ра 2025 року!
Телефонуйте, відповім на всі питання зручний для вас час !