Продається квартира Львівська, Львів, Франківський, Кульпарківська, 93 (№ 213-183-916)

Ціна: 265 000 $
Характеристики
Ціна: | 265 000 $ |
---|---|
№ об'єкта: | 213-183-916 |
Кімнат: | 2 |
Поверх: | 7 / 10 |
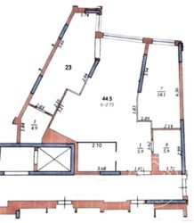
Площа: | 100 / 28 / 30 м2 |
Додатково: | новобудова |
Адреса: Львівська, Львів, Франківський, Кульпарківська, 93
Продам 2к квартиру 100 м2 в новобудові!
Рідкісне планування в ПАРУС СІТІ !
Кульпарківська 93 .
Заселена обжита секція!
- Загальна площа 100м2
- 2 кімнати розділені вітальнею
- Майстер-спальня
- Кухня вітальня 40м2👌
- Підігрів підлоги всюди окрім кімнат
- Велика гардеробна для зберігання всіх речей !
- Повне наповнення для комфортного проживання!
- Панорамні вікна, з бронебійною плівкою в майстер-спальні,
- Робоче місце
- Два санвузли: один з ванною та туалетом, інший з душом та туалетом,
-Бомбосховище в під’їзді!
Сам ЖК має дуже розвинену власну інфраструктуру🙌
Прямо на території різні магазини, супермаркет, стоматологія, Мастерзоо, нова пошта, Розетка, шоуруми, ресторан, кальян, перукарні а ін!
Поруч школи, дит.садочкки, супермаркети Свльпо, базар, зупинки, Торгівельні центри та інше.
За три хвилини пішки парк Піскові озера для прогулянок та відпочинку!
Топовий ЖК з високим попитом як для власного проживання, так і для вигідної здачі в оренду .
Рідкісний планування👌
Топова локація👌
Перспективна квартира для себе👌
Телефонуйте, відповім на всі питання та огляне зручний для вас час.
Вільний продаж.