Продається квартира Львівська, Львів, Залізничний, Рудненська (№ 213-202-431)

Ціна: 75 000 $
Характеристики
| Ціна: | 75 000 $ |
|---|---|
| № об'єкта: | 213-202-431 |
| Кімнат: | 2 |
| Поверх: | 7 / 12 |
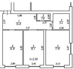
| Площа: | 68 / 53 / 15 м2 |
Адреса: Львівська, Львів, Залізничний, Рудненська
Опалення: Власна котельня Стіни: Моноліт Продаж 2 к квартири вул. Рудненська ЖК Ріел Сіті Продається 2-кімнатна квартира у зданому будинку ЖК Ріел Сіті за адресою вул. Рудненська, 8, загальною площею 68 кв. Житловий комплекс із сучасною інфраструктурою, якісною забудовою та транспортною доступністю Продаж по переуступці Квартира готова до початку ремонту Будинок зданий та заселений Працює ліфт та підключені усі комунікації вода, електроенергія, опалення Виготовлено технічний паспорт Зручне планування У будинку є підземний паркінг, комірки Для зручності мешканців в будинку є дві сходові клітки на секцію Назва ЖК: Ріел Сіті Тип угоди: Переуступка Клас житла: Комфорт Cанвузол: Роздільний Меблювання: Ні Інфраструктура (до 500 метрів): Аптека, Дитячий садок, Ринок, Парк, зелена зона, Дитячий майданчик, Відділення пошти, Школа, Магазин, кіоск, Супермаркет, ТРЦ, Зупинка транспорту


